Jolie villa provençale 4P (3 chambres) avec un magnifique terrain (2690 m2), piscine et 2 garages, dans un secteur très calme, à 2 km du centre de Bargemon.
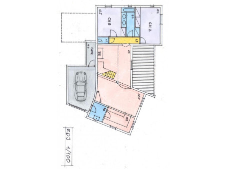
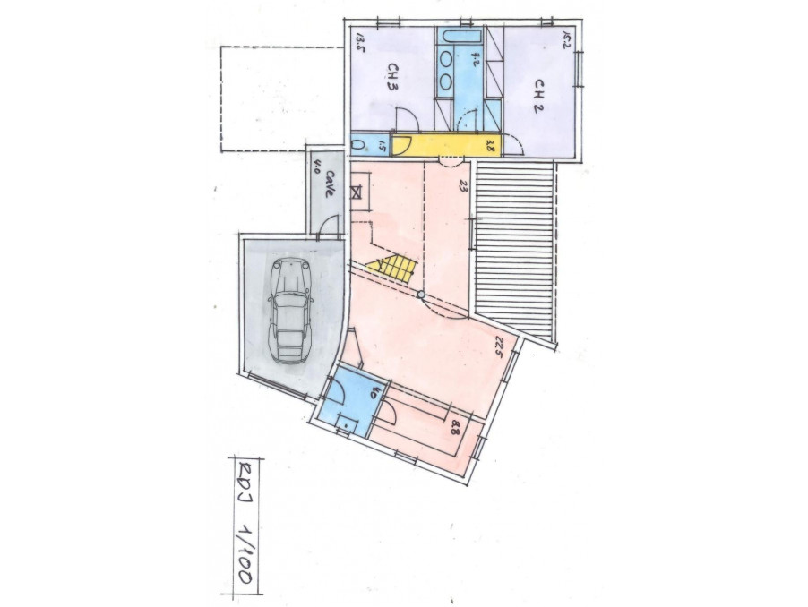
On entre dans la maison au niveau rez-de-chaussée, où l'on trouve une mezzanine, une chambre (11 m2) avec sa salle d'eau avec WC (3 m2), et une terrasse avec une belle vue (7.5 m2).
On descend au niveau rez-de-jardin, dans un vaste espace salon - salle à manger (46 m2) très volumineux avec cheminée, et avec des portes-fenêtres donnent sur une belle terrasse orientée SUD-EST.
La cuisine américaine (9 m2) est entièrement équipée. Le cellier annexe (4 m2) donne accès direct au garage 1 et à une cave à vin.
Sur ce même niveau, on a 2 belles chambres avec placards fixes (13.5 m2 et 15.2 m2), 1 WC indépendant et une grande salle de bains avec baignoire et doubles vasques.
Menuiseries bois simple vitrage.
Chauffage électrique et bois.
Tout à l'égout.
Quelques fissures au niveau du RDJ.
Le terrain en restanques comporte de nombreuses terrasses, une cuisine extérieure avec bbq, et piscine en dur avec local technique, et un 2ème garage.
La propriété est pratiquement entièrement clôturée, et comporte 3 accès pour voitures.
Situation très privative, sans vis-à-vis.